
Promovidas por Prat Espais.
Promoción en un solar municipal por parte de Prat Espais, que construirá las viviendas y gestionará los arrendamientos.
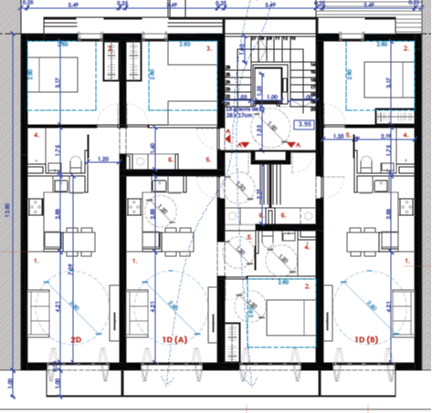
Dispondrá de 8 viviendas de alquiler, 5 de 1 habitación y 3 de 2 habitaciones.
Las viviendas también contarán con aparcamiento para bicicletas.
El proyecto de arquitectura industrializada modular incluye altos criterios de sostenibilidad y reducción del consumo energético, para favorecer la asequibilidad de las viviendas (reducción de la factura energética) durante su fase de uso.
Previsión de inicio de obras: tercer trimestre de 2025, finalización de las obras: primer trimestre de 2027.
Obra financiada con fondos Next Generation

Localización
