S’inicien els treballs de redacció del projecte de 71 habitatges de protecció oficial en sòl municipal que promourà Prat Espais
Un cop finalitzat el concurs d’arquitectura i determinat l’equip redactor guanyador que es va presentar amb un lema anomenat “Com a la Seda”, amb referències explicites en la seva proposta a les properes Cases de la Seda, s’ha procedit a contractar els serveis d’arquitectura de l’equip "Brullet Brullet + Bajet Giramé".
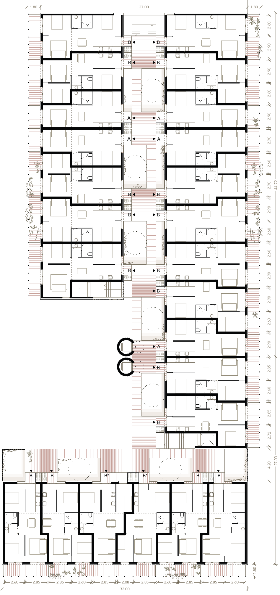
La promoció disposarà de 71 habitatges de lloguer; 17 d’una habitació, 53 de dos habitacions i 1 de tres habitacions. Els habitatges s’han dissenyat potenciant la calidesa i una percepció d’amplitud de l’espai, s’ha aprofitat al màxim la seva superfície interior, sense passadissos i tots disposaran de ventilació creuada i de terrassa.
Serà un edifici de construcció altament industrialitzada, això vol dir que una part molt important dels treballs no es realitzaran en l’obra, on sobretot es procedirà al muntatge dels elements prefabricats que es vagin subministrant. Aquest sistema constructiu proporciona més qualitat a l’edifici, la seva execució és més ràpida i segura, genera menys residus, pol·lució i sorolls, i per tant menys molèsties als veïns de l’entorn.
L’edifici a més de disposar de sistemes passius de control tèrmic com l’hivernacle del pati central, la envolupant aïllada i amb protecció solar o la ventilació creuada en els habitatges, també estarà equipat amb sistemes de producció d’energia renovable com plaques fotovoltaiques per produir electricitat i equips d’aerotermia per produir aigua calenta i calefacció. Amb aquests elements la demanda energètica de l’edifici serà molt baixa i això es traduirà en rebuts energètics baixos.
El calendari previst és el següent: a l’inici d’aquesta tardor es disposarà del projecte bàsic, el proper hivern finalitzarà la redacció del projecte executiu i es podrà licitar la construcció. Les obres es podrien iniciar a l’estiu de 2023 i finalitzar-se el darrer trimestre de 2024 o el primer de 2025.
Els habitatges seran adjudicats per concurs a les persones inscrites en el Registre de Sol·licitants d’HPO i en la convocatòria específica, que es publicarà a mitjans de l’any que ve.
Tos els habitatges seran de lloguer, estaran destinats per a persones i famílies empadronades en El Prat de Llobregat, es reservarà una part per a persones joves (menors de 35 anys), grans (majors de 65) i a famílies monoparentals.
Les persones que estiguin interessades o que vulguin més informació poden contactar amb Prat Espais a habitatge@pratespais.com o al 93 370 50 54
